An extremely light & bright first floor 1 bedroom flat (459sq ft/42.67sq m) forming part of this substantial period property dating between 1900 –1929. The apartment benefits from double glazed windows throughout, good ceiling height and a lovely bay window in the reception room.
The property is situated in this convenient locality within a few hundred metres of all shopping & transport facilities in Camden Town, together with wide open green spaces of Primrose Hill & Regent’s Park.
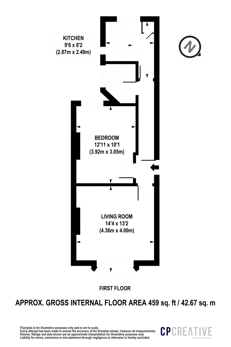
Accommodation Comprises:
Bedroom, Bathroom, Kitchen, & reception room.
First Floor
Entrance Hall
Door entrance phone system, arch shaped window, ceiling rosette.
3-piece white suite comprising: panelled bath with mixer tap & shower attachment, low level w/c, wash basin with fitted mirror above, mirror fronted medicine cabinet, display shelf, heated towel rail, tiled floor, tiled walls, window.
Kitchen
Single stainless steel sink unit with mixer tap & drainer board, work surfaces, 4 ring gas hob with concealed cooker hood above, electric oven under, wall & base cupboards, plumbing for washing machine, plumbing for dishwasher, fridge/freezer, tiled walls, double glazed windows, views to rear
Reception Room
Bay window with views towards Gloucester Avenue, ceiling rosette, display shelves
PRICE: £595,000 SUBJECT TO CONTRACT
TENURE: Leasehold 172 years approx remaining SERVICE CHARGE: £1,216.30 p.a.(approx.) Council Tax: Band E EPC: C